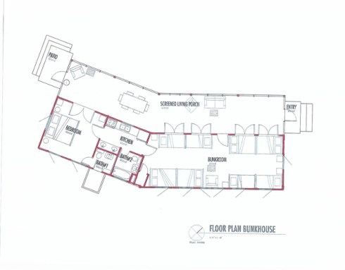
As featured in Dwell Magazine, this 1400 square foot Bastrop bunkhouse is used as a recreation home for a film writer and director. Built into the natural environment, the house expands vertically to give the illusion of more space.
.
The home was designed by Austin architect Henry Panton.
.
Cedar and steel make up most of the structure of the home.
.
Love this door design!
.
.
.
Outdoor shower. *sigh*
.
The director wanted his home to be a place to entertain family and friends, so as you can see it sleeps about a dozen people! The best part is that the bunks are on casters and can be wheeled out through the french doors onto the porch so guests can sleep out there if they prefer!
.
.
This 90ft foot bridge leads to an outdoor bathhouse and swimming pool.
.
All photos courtesy of Dwell Magazine. You can see the article and all the photos here.
.
Happy Friday!











I love everything about this place! Thank you for sharing 🙂