hill country modern

Welcome to this upscale home, located up the road from me in Wimberly, Texas.  Designed by Cunningham Architects out of Dallas,  this modern treasure is as beautiful as it is energy efficient.  Among the green building principles are use of local materials and harvesting rainwater on the rooftop.

.

.

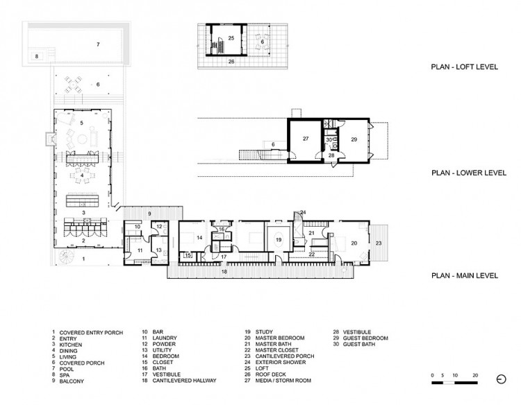
“Nestled on the edge of a bluff in the Texas hill country, the Wimberley residence quietly sits among the brush and trees, providing a peaceful respite for its inhabitants.” – Cunningham Architects

.

.

.

“An “L” plan effectively separates the bedroom wing from the more public kitchen/living/dining room wing. As such, the house essentially is two discrete boxes, one of glass, and the other of stained cement fiber board, indicative of their respective functions.” – Cunningham Architects

.

A few pictures of the interior!

.

.

.

.

Don’t forget about the rooftop patio.  Ballin!

.

I can already picture the rediculous pool parties that would happen here.

When can I move in???? 🙂

.

(Picture sources:  Cunningham Architects website, and also on this link)

What do you think?